液壓缸密封圈的安裝方法
優質內容 來源:O型圈廠家 作者:橡膠小能手 發布時間:2021-05-07 15:14:56 閱讀次數: 收藏數:12 分享:42
液壓缸是將液壓能轉變為直線運動機械功的一種能量轉換的液壓執行元件。安裝前,應S先檢查密封件表面質量,密封件的幾何尺寸和精度都要符合標準要求。
安裝液壓缸密封圈的方法:
安裝前,應S先檢查密封件表面質量,不得有毛刺、切邊、飛邊、氣孔和疏松等缺陷,密封件的幾何尺寸和精度都要符合標準要求。
孔用組合密封圈由O形圈和耐磨環組成(見圖1)。

由于O型圈彈性較大,安裝比較容易;而耐磨環彈性較差,如果直接安裝則活塞的各臺階、溝槽容易劃傷其密封表面,影響密封效果。為保證耐磨環安裝時不被損壞,應采取一定的安裝措施。耐磨環主要由填充聚四氟乙烯(PTFE)材料制成,具有耐腐蝕的特性,熱膨脹系數較大,故安裝前先將其在100℃的油液中浸泡20min,使其逐漸變軟,然后用圖2所示工裝將其裝入活塞的溝槽中。
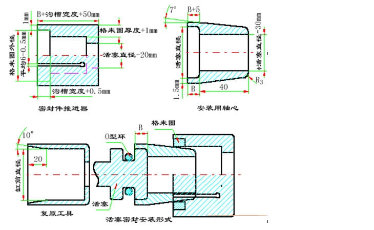
活塞密封件(外徑)安裝圖說明
下述安裝程序適用格萊圈密封件,對整體式密封裝置,建議使用圖示安裝工具
DY步:對所有密封裝置硬件,密封元件清洗并上油
第二步:把O形圈(彈性體)放入密封裝置溝槽中
第三步:把安裝用軸芯軸裝到活塞上
第四步:把格萊圈套再軸心上用推進器推入溝槽中
第五步:把安裝用軸心從活塞上拆下
第六步:一邊轉到,一邊把復原工具推動密封組件上,一分鐘后撤去。

由于O形圈彈性較大,安裝比較容易;而耐磨環彈性較差,如果直接安裝則活塞的各臺階、溝槽容易劃傷其密封表面,影響密封效果。為保證耐磨環安裝時不易損壞,應采取一定的安裝措施。耐磨環主要由填充聚四氟乙烯(PTFE)材料制成,具有耐腐蝕的特性,熱膨脹系數較大,故安裝前先將其在100℃的油液中浸泡20min,使其逐漸變軟,然后用圖2所示工裝將其裝入活塞的溝槽中。
圖2所示工裝由定位套和漲套組成。定位套頭部有5o倒角,用于引導O形圈和耐磨環裝入活塞端部溝槽。漲套由彈性較好的65 Mn鋼經熱處理制成,加工成均勻對稱的8瓣結構。需要注意的是,加工各瓣底部的小孔時,分度要均勻,銑開各瓣時應使鋸口對準小孔的中心,以保證漲套各瓣能均勻漲開。同時各部位都應進行(光滑)倒角,以免損壞密封圈。
每一種規格的密封圈都應有一套對應的工裝來保證其裝配要求。安裝完成后不允許密封圈有扭曲、折皺、裝反和劃傷的現象存在。
圖3所示為液壓缸缸筒,缸筒上的螺紋孔常安排在焊接工序之后加工,這樣就不可避免地要在螺紋孔出口與缸筒內壁的交界處產生毛刺。為清除毛刺,必須設計制做專用刀具對其進行加工,達到光滑過渡的目的。專用刀具的結構。使用時,先將刀桿從螺紋孔中插人,然后從側面將刀頭安裝在刀桿上,旋轉刀桿即可將毛刺除掉并加工出光滑完整的表面。

另一類密封件是聚氨酯材質的Y形密封圈因其具有耐油、耐磨、耐低溫、耐彈性、耐低溫等優點,廣泛用于液壓油缸中。它的內、外唇根據軸用或孔用可制成不等高形狀,以起到密封和自身保護的作用。不等高唇Y型圈,其短唇與密封面接觸,滑動摩擦阻力小,耐磨性好,壽命長;長唇與非相對運動表面有較大的預壓縮量,工作時不易竄動。
由于聚氨酯材質的Y形圈硬度高、預壓縮量大,在安裝、更換時常常會造成密封圈被翻圈、咬邊和擠破等損壞現象,從而起不到應有的密封效果,甚至失效。裝配時,我們曾用螺絲刀將密封唇沿缸徑往里壓;或用細鐵絲將密封圈的外唇捆緊,使其外徑小于缸的內徑,然后將密封圈送入缸內,再將細鐵絲抽出。但這兩種裝法都容易將密封圈劃傷,導致密封失效,增加維修時間。針對這種情況,我們用0.lmm厚的冷軋鋼帶或銅皮將其剪成長方形,其長度等于Y形圈外徑的周長,然后用它將密封圈裹緊,再一點一點地送入液壓缸缸筒中,待外唇口全部進入缸筒后再將其抽出,安裝效果較好。
以上是“液壓缸密封圈的安裝方法”知識分享,希望能幫助到大J,如有更多O形圈或相關問題,歡迎電話咨詢!
- 135****847143小時前【向廠家咨詢】
- 150****242416小時前【向廠家咨詢】
- 137****556333小時前【向廠家咨詢】
- 184****454353小時前【向廠家咨詢】
- 159****769948小時前【向廠家咨詢】
- 136****284610小時前【向廠家咨詢】
本文標題:液壓缸密封圈的安裝方法本文地址:http://m.biaoqiu.cn/technology/171.html



「O型圈」氫化丁腈橡膠O型圈
「O型圈」聚四氟乙烯橡膠O型圈
全氟醚O型圈
「O型圈」天然橡膠O型圈